消防設計——自動噴淋系統設計
作者:admin?? 添加時間:2014-07-20 11:20
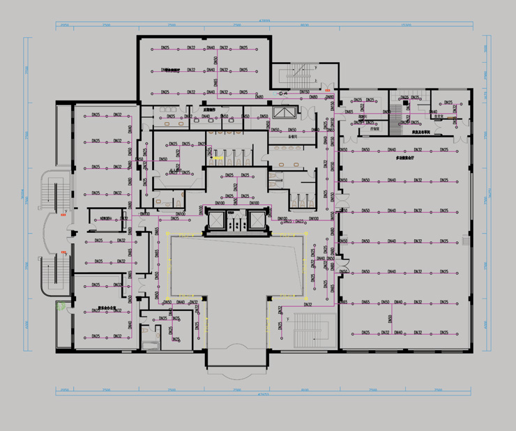
消防噴淋系統是一種消防滅火裝置,是目前應用十分廣泛的一種固定消防設施,它具有價格低廉、滅火效率高等特點。根據功能不同可以分為人工控制和自動控制兩種形式。系統安裝報警裝置,可以在發生火災時自動發出警報,自動控制式的消防噴淋系統還可以自動噴水并且和其他消防設施同步聯動工作,因此能有效控制、撲滅初期火災。


相關資訊
- 08-06消防系統安裝時需要依據哪些規范
- 05-21建筑消防安裝工程施工驗收檢查哪些
- 02-252021年消防工程公司的消防電話系統要
- 02-252021年消防改造公司的消防接線箱要求
- 02-252021年消防改造公司的消防聯動控制要
- 09-01消防工程施工中火災報警系統布線規
- 09-01消防改造工程中的消防聯動安全施工
- 08-03大型商場安裝擋煙垂壁需要注意五個
- 08-03建筑安裝擋煙垂壁的防煙分區設計規
- 08-03大型商場/展覽館內部裝修設計要求






