消防設計——氣體滅火系統設計
作者:admin?? 添加時間:2014-07-20 11:42
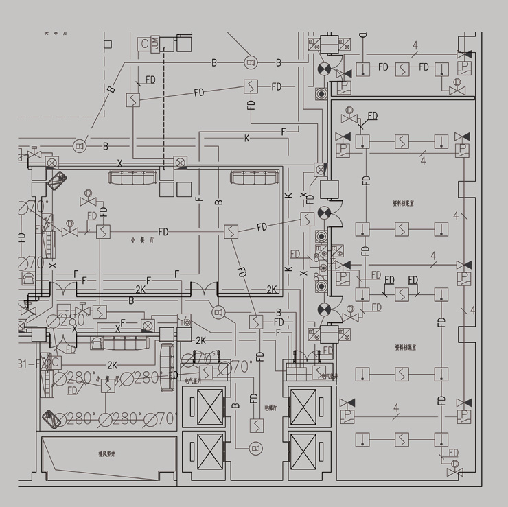
氣體滅火系統是指平時滅火劑以液體、液化氣體或氣體狀態存貯于壓力容器內,滅火時以氣體(包括蒸汽、氣霧)狀態噴射作為滅火介質的滅火系統。并能在防護區空間內形 成各方向均一的氣體濃度,而且至少能保持該滅火濃度達到規范規定的浸漬時間,實現撲滅該防護區的空間、立體火災。


相關資訊
- 08-06消防系統安裝時需要依據哪些規范
- 05-21建筑消防安裝工程施工驗收檢查哪些
- 02-252021年消防工程公司的消防電話系統要
- 02-252021年消防改造公司的消防接線箱要求
- 02-252021年消防改造公司的消防聯動控制要
- 09-01消防工程施工中火災報警系統布線規
- 09-01消防改造工程中的消防聯動安全施工
- 08-03大型商場安裝擋煙垂壁需要注意五個
- 08-03建筑安裝擋煙垂壁的防煙分區設計規
- 08-03大型商場/展覽館內部裝修設計要求






